60 000 000 Р 792 300 $ или 663 200

Информация об помещении

1
Этаж

Состояние и оснащение

Количество этажей
3
Развернуть
Агент
+7 (987) 201-36-52
Начать чат с агентом

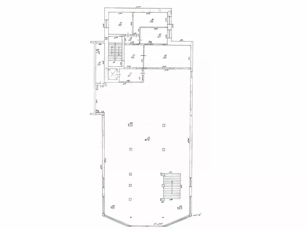
Помещение свободного назначения в Оренбургская область, Орск Новый ...

Представляем вашему вниманию эксклюзивное предложение - отдельно стоящее здание с успешно функционирующими арендаторами, включая фитнес-центр, мебельный магазин, уютное кафе, образовательное учреждение и банкетный зал. Это здание, расположенное по престижному адресу: Оренбургская область, город Орск, проспект Ленина, дом 113А, представляет собой уникальную инвестиционную возможность. Местоположение и инфраструктура: Здание находится на первой линии, в районе с развитой инфраструктурой и удобной транспортной доступностью. В непосредственной близости расположены культурные и досуговые центры, многоквартирные жилые комплексы, а также сетевые магазины, такие как М-Видео, Ситилинк, гипермаркеты Лента, Магнит, Стройландия, Детский мир и Бургер Кинг. Характеристики объекта:Нежилое, с этажностью 0, 1, 2.Общая площадь: 2096 кв.м.Земельный участок: 2500 кв.м.Ввод в эксплуатацию: Сентябрь 2016 года. Коммуникации: Водоснабжение, Канализация Электроснабжение: Мощностью 60 кВт с возможностью увеличения. Газоснабжение: Собственная котельная с системой газопотребления и газораспределения. Инвестиционный потенциал: Это здание не только обеспечивает стабильный доход от аренды благодаря наличию надежных арендаторов, но и предлагает потенциал для расширения и развития бизнеса в будущем. Стоимость объекта: 60,000,. Это предложение является идеальным вариантом для инвесторов, ценящих качество, расположение и долгосрочные перспективы. Если вы заинтересованы в приобретении данного объекта или хотите узнать больше информации, пожалуйста, свяжитесь с нами для организации просмотра.ID объекта в нашей базе: 1165

Читать полностью
    Позвонить Написать
    60 000 000 Р792 300 $ или 663 200
    Агент
    +7 (987) 201-36-52
    Начать чат с агентом
    Похожие предложения
    Помещение свободного назначения в Оренбургская область, Оренбург ... - Фото 1
    Помещение свободного назначения в Оренбургская область, Оренбург ... - Фото 2
    Продается уникальное нежилое помещение общей площадью 1408,2 м. в самом сердце города. Объект расположен в двух уровнях и идеально подходит как для продолжения арендного бизнеса , так и как для размещения собственного масштабного проекта. Ключевые преимущества...
    • 2/2 эт.
    60 000 000 Р
    Агент
    +7 (987) Показать номер
    Посмотреть контакты
    Помещение свободного назначения в Московская область, Дрезна ... - Фото 1
    Помещение свободного назначения в Московская область, Дрезна ... - Фото 2
    674850-gab . Предлагаем отдельно стоящее двухэтажное здание с якорными арендаторами Верный, Fix Price, Эконом Одежда и Обувь, площадью 943 кв. м. Без комиссии для покупателя. Преимущества объекта:-3 минуты на автомобиле от ж/д станции Дрезна;-густонаселённый...
    • 1/2 эт.
    60 000 000 Р
    Агент
    +7 (938) Показать номер
    Посмотреть контакты
    Прямая продажа от застройщика - Фото 1
    Прямая продажа от застройщика - Фото 2
    Прямая продажа от застройщика - Фото 3
    Прямая продажа от застройщика - Фото 4
    Прямая продажа от застройщика - Фото 5
    Прямая продажа от застройщика - Фото 6
    полезная площадь 263.3м²

    Помещение под МЕДЦЕНТР от ЗАСТРОЙЩИКА! Угловое нежилое помещение № 1.1, корпус 5.1, общей площадью 263,30 м2, первый этаж, 2 входа с улицы. Центральное местоположение, напротив муниципальный ДОО на 560 мест и Школа на 1500 мест. Помещение выходит на...
    • 263.3 м²
    • 1/2 эт.
    59 282 500 Р
    Агент
    +7 (495) Показать номер
    Посмотреть контакты
    Помещение свободного назначения в Краснодарский край, Динской район, ... - Фото 1
    Помещение свободного назначения в Краснодарский край, Динской район, ... - Фото 2
    Продается земельный участок для эксплуатации нежилых помещений производственной базы в станице Новотитаровская.Площадь: 47.59 сот в собственности.Фасад 50 метров. Категория земель: земли населенных пунктов.ВРИ: для эксплуатации нежилых помещений производственной...
    • 1/1 эт.
    60 000 000 Р
    Агент
    +7 (918) Показать номер
    Посмотреть контакты
    Помещение свободного назначения в Краснодарский край, Краснодар ... - Фото 1
    Помещение свободного назначения в Краснодарский край, Краснодар ... - Фото 2
    Офисное здание в историческом Центре города рядом с ул. Кубанская набережная Характеристики: общая площадь - 505 кв.м. Земельный участок - 3 сотки с благоустроенным внутренним двором и мангальной зоной. Своя парковка - 5 машиномест Мощность - 30 кВт...
    • 1/3 эт.
    60 000 000 Р
    Агент
    +7 (988) Показать номер
    Посмотреть контакты

    Не нашли подходящего объявления?

    Оставьте заявку, и наши риэлторы подберут псн в районе Орска

    (0)