2 599 000 Р 32 080 $ или 27 670

Информация о квартире

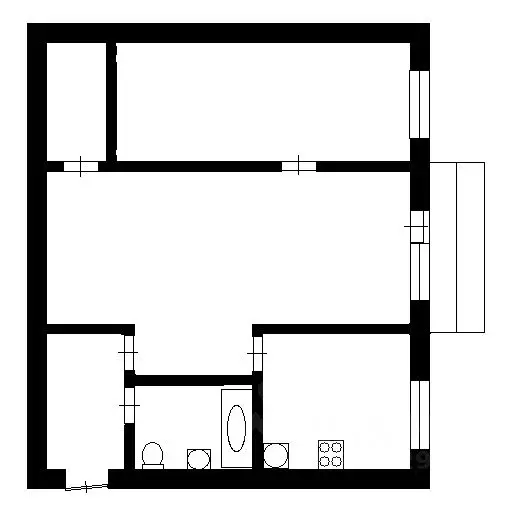
46 м2
Площадь
6 м2
Кухня
3
Комнаты
5
Этаж
5
Этажность

Дополнительная информация

Тип дома
панельный
Развернуть
Агент
+7 (987) 201-60-87
Начать чат с агентом

3-к кв. Оренбургская область, Орск Новый город мкр, ул. Ленинского ...

Продам двухкомнатную квартиру в центре нашего города. В квартире:- новая проводка,- новая сантехника по всей квартире( краны,трубы,батареи),- новые окна,- новые заливные полы,- новая входная дверь,- новая ванная ( ванна, унитаз) отделана кафелем,- прихожая в кафеле. В квартире сделана необычная перепланировка, не свойственная нашему городу. Приобретая эту квартиру, вы получаете эксклюзивный вариант . ID объекта в нашей базе: 1958

Читать полностью

    Для того, чтобы купить трехкомнатную квартиру по адресу: Орск, ул. Ленинского Комсомола, 30, позвоните по телефону +7 (987) 201-60-87. Торопитесь! Объявление №30089564422 о продаже трехкомнатной квартиры опубликовано Вчера.

    Позвонить Написать
    2 599 000 Р32 080 $ или 27 670
    Агент
    +7 (987) 201-60-87
    Начать чат с агентом
    Похожие предложения
    2-к кв. Оренбургская область, Орск Новый город мкр, ул. Ленинского ... - Фото 1
    2-к кв. Оренбургская область, Орск Новый город мкр, ул. Ленинского ... - Фото 2
    2-комнатная квартира, общая площадь 43м², кухня 6м²

    Продам 2к.кв 5/5 полностью с мебелью и бытовой техникой всё в хорошем состоянии, находится район Комсомольской площади. Квартира с хорошим ремонтам, стены выровнены коридор венецианская штукатурка, потолки натяжные, пол ламинат, ванна кафель, поменяны...
    • 43 м²
    • 2-ком
    • 5/5 эт.
    • панельный
    2 600 000 Р
    Агент
    +7 (987) Показать номер
    Посмотреть контакты
    3-к кв. Оренбургская область, Орск Новый город мкр, ул. Ленинского ... - Фото 1
    3-к кв. Оренбургская область, Орск Новый город мкр, ул. Ленинского ... - Фото 2
    3-комнатная квартира, общая площадь 59м², жилая 39м², кухня 6м²

    Продается 3-комнатная квартира по адресу: Ленинского комсомола, 14а, на 5 этаже 5-этажного дома. Общая площадь квартиры составляет 59.1 квадратных метра, идеально подходящая для комфортного проживания.- Смежно-изолированная планировка позволяет удобно...
    • 59 м²
    • 3-ком
    • 5/5 эт.
    • панельный
    2 600 000 Р
    Агент
    +7 (987) Показать номер
    Посмотреть контакты
    1-к кв. Оренбургская область, Орск Новый город мкр, ул. Ленинского ... - Фото 1
    1-к кв. Оренбургская область, Орск Новый город мкр, ул. Ленинского ... - Фото 2
    1-комнатная квартира, общая площадь 30м², жилая 19м², кухня 6м²

    Продается уютная 1-комнатная квартира в центре города на Ленинского Комсомола, 41 Ищете комфортное жилье в самом сердце города с развитой инфраструктурой?Эта квартира — идеальный вариант для вас В шаговой доступности находятся остановки транспорта,...
    • 30 м²
    • 1-ком
    • 1/5 эт.
    • блочный
    2 600 000 Р
    Агент
    +7 (987) Показать номер
    Посмотреть контакты
    2-к кв. Оренбургская область, Орск Орский просп., 31 (43.4 м) - Фото 1
    2-к кв. Оренбургская область, Орск Орский просп., 31 (43.4 м) - Фото 2
    2-комнатная квартира, общая площадь 43м², жилая 32м², кухня 6м²

    Продается двухкомнатная квартира в районе ОЗТП ваш комфортный уютный дом Предлагаем вашему вниманию двухкомнатную квартиру по адресу: Орский проспект 31. Квартира общей площадью 43,4 кв. м расположена на 4 этаже пятиэтажного панельного дома. Преимущества...
    • 43 м²
    • 2-ком
    • 4/5 эт.
    • панельный
    2 600 000 Р
    Агент
    +7 (987) Показать номер
    Посмотреть контакты
    2-к кв. Оренбургская область, Орск Вокзальное ш., 9 (43.0 м) - Фото 1
    2-к кв. Оренбургская область, Орск Вокзальное ш., 9 (43.0 м) - Фото 2
    2-комнатная квартира, общая площадь 43м², жилая 34м², кухня 4м²

    Арт.Уютная двухкомнатная квартира Дорогие покупатели Представляю вашему вниманию замечательную двухкомнатную квартиру в районе ТЗБ. Расположение — просто бомба Прямо напротив дома ТЗБ, вокруг всё, что нужно для жизни: магазины, аптеки, Wildberries, Красное...
    • 43 м²
    • 2-ком
    • 4/4 эт.
    • кирпичный
    2 700 000 Р
    Агент
    +7 (961) Показать номер
    Посмотреть контакты

    Не нашли подходящего объявления?

    Оставьте заявку, и наши риэлторы подберут квартиру в районе Орска

    (0)