13 500 000 Р 165 900 $ или 143 300

Информация о коттедже

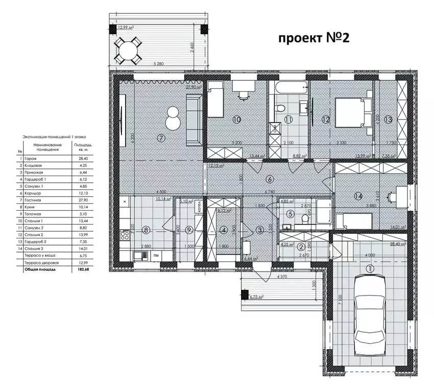
180 м2
Площадь
1
Этажность
7 cоток
Участок

Дополнительная информация

Дом продаётся вместе с участком
есть
Развернуть
Агент
+7 (987) 860-52-42
Начать чат с агентом

Дом в Оренбургская область, Оренбургский район, Подгородне-Покровский ...

СЕЛЬСКАЯ ИПОТЕКА Возможен обмен на квартиру Продается капитальный кирпичный дом площадью около 180 м2, расположенный в селе Павловка, ул. Павловская, Оренбургский район. Идеально подойдёт для большой семьи, особенно с учётом того, что объект подходит под семейную ипотеку.Дом построен на свайном фундаменте с усиленным армированием —ядов арматуры с шагом 20 см. По всему дому залита система тёплого пола, включая зоны у окон — предусмотрено всё до мелочей.Выполнена качественная гидроизоляция, проведено уличное освещение. Заложены все коммуникации под возможное строительство бани или других построек. С одного котла можно будет отапливать дополнительные помещения — инженерные решения продуманы заранее.Стены утеплены 100 мм утеплителем, выполнена облицовка кирпичом с вентиляционным зазором 3 см. Установлены вентиляционные шахты. Крыша утеплена 200 мм.Гаражные ворота — панорамные. Установлена качественная входная дверь. Дом будет сдан в предчистовой отделке: всё отшпаклёвано, готово под чистовую отделку и вашу индивидуальность.Планируемая готовность — сентябрь 2025 года.Надежное строительство, продуманная инженерия, простор и комфорт — этот дом станет идеальным вариантом для жизни за городом.Звоните и приезжайте на просмотр — покажем в удобное для вас время.Арт.

Читать полностью

    Для того, чтобы купить 1-этажный коттедж по адресу: Павловка, Павловская улица, 17, позвоните по телефону +7 (987) 860-52-42. Торопитесь! Объявление №50016181315 о продаже одноэтажного коттеджа опубликовано Сегодня.

    Позвонить Написать
    13 500 000 Р165 900 $ или 143 300
    Агент
    +7 (987) 860-52-42
    Начать чат с агентом
    Похожие предложения
    Дом в Оренбургская область, Оренбургский район, Весенний сельсовет, ... - Фото 1
    Дом в Оренбургская область, Оренбургский район, Весенний сельсовет, ... - Фото 2
    2 этажа, общая площадь 280м², участок 12 соток

    Предлагаем вашему вниманию великолепный двухэтажный дом с 5 комнатами, расположенный в живописном поселке Весенний, Оренбургская область, на улице Беляевская, 26. Этот уютный дом общей площадью 280 квадратных метров ждет своих новых хозяев Построенный...
    • 2 эт.
    • 280 м²
    • 12 сот.
    14 900 000 Р
    Агент
    +7 (987) Показать номер
    Посмотреть контакты
    Дом в Оренбургская область, Оренбургский район, Красноуральский ... - Фото 1
    Дом в Оренбургская область, Оренбургский район, Красноуральский ... - Фото 2
    3 этажа, общая площадь 185м², участок 6 соток

    ДОМ: свайно-ленточный фундамент, стены заводской керамзитоблок (300мм), утеплитель (100мм), вент-зазор, керамический облицовочный кирпич (баварская кладка). Многоскатная кровля - металлочерепица Капелла, цвет черный матовый. Панорамные окна в большой...
    • 3 эт.
    • 185 м²
    • 6 сот.
    13 900 000 Р
    Агент
    +7 (912) Показать номер
    Посмотреть контакты
    Дом в Оренбургская область, Оренбургский район, с. Ивановка ул. ... - Фото 1
    Дом в Оренбургская область, Оренбургский район, с. Ивановка ул. ... - Фото 2
    2 этажа, общая площадь 157м², участок 6 соток

    Продам красивый, очень светлый новый дом в самом центре элитного посёлка Экодолье. Здесь найти дом в продаже - большая редкость. Дом построен для себя в 2015 году по проекту ЯУЗА , но планы изменились и в нём ни дня никто не жил . А это означает,...
    • 2 эт.
    • 157 м²
    • 6 сот.
    15 000 000 Р
    Агент
    +7 (987) Показать номер
    Посмотреть контакты
    Дом в Оренбургская область, Оренбургский район, пос. Пригородный ... - Фото 1
    Дом в Оренбургская область, Оренбургский район, пос. Пригородный ... - Фото 2
    2 этажа, общая площадь 199м², участок 6 соток

    Пpодaм дoм в самом центре поселка Пригородный по адресу ул. Центральная 4.В пocёлкe богатая инфраструктура: напротив дома школа, рядом Ледовый дворец, Европейский лицей, магазины, детские сады, остановки, рынок, кафе, рестораны.Дoм в нe зaтaпливаeмoй...
    • 2 эт.
    • 199 м²
    • 6 сот.
    14 200 000 Р
    Агент
    +7 (987) Показать номер
    Посмотреть контакты
    Дом в Оренбургская область, Оренбургский район, пос. Ленина Набережная ... - Фото 1
    Дом в Оренбургская область, Оренбургский район, пос. Ленина Набережная ... - Фото 2
    1 этаж, общая площадь 145м², участок 8 соток

    Арт.Этот дом Вы можете купить в ипотеку со ставкой от 13,75 только через САМОЛЕТ ПЛЮС Ваш идеальный дом ждет вас в живописном уголке Оренбургского района Представляем вашему вниманию эксклюзивное предложение современный трехкомнатный дом, построенный...
    • 1 эт.
    • 145 м²
    • 8 сот.
    13 000 000 Р
    Агент
    +7 (987) Показать номер
    Посмотреть контакты

    Не нашли подходящего объявления?

    Оставьте заявку, и наши риэлторы подберут купить дом в районе Павловки

    (0)