3 500 000 Р 44 040 $ или 37 940

Информация о квартире

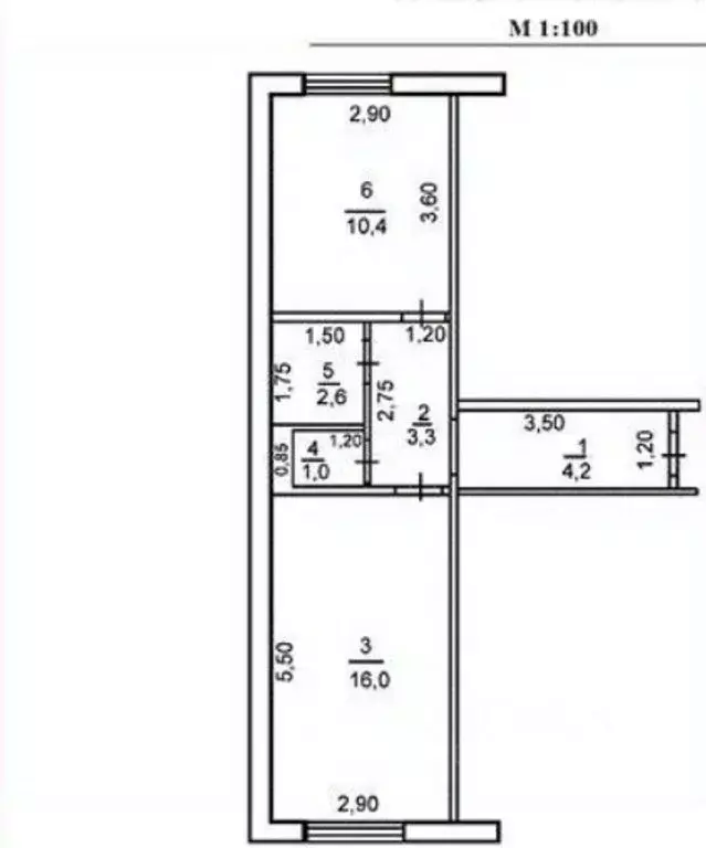
37 м2
Площадь
25 м2
Жилая
7 м2
Кухня
1
Комната
3
Этаж
9
Этажность

Дополнительная информация

Тип дома
панельный
Развернуть
Агент
+7 (987) 780-59-20
Начать чат с агентом

1-к кв. Оренбургская область, Оренбург проезд Автоматики, 12/1 (37.5 ...

Продаётся уютная однокомнатная квартира в Оренбурге Основные характеристики:- Общая площадь: 37,5 квадратных метров.- Расположение: третий этаж девятиэтажного дома. - Комната оборудована современными стеклопакетами, улучшающими звукоизоляцию и теплоизоляцию. - Санузел компактный, аккуратный, готов к использованию. - Чистота подъезда и ухоженность двора способствуют поддержанию положительного имиджа жильцов.Помимо технических характеристик, покупатель получает ряд дополнительных бонусов:- Приятное расположение квартиры в спальном районе, характеризующемся низкой плотностью населения и спокойной обстановкой.- Близкое расположение остановки общественного транспорта, что существенно экономит время на поездку до центральных частей города.- Хорошая транспортная доступность делает возможным быстрое перемещение по городу и выезд за пределы города в любое время суток.- Доступная инфраструктура района: в непосредственной близости располагаются необходимые социальные учреждения, такие как аптеки, продовольственные магазины.Также большой плюс: Закрытый двор (шлагбаум), детская площадка и беседка.Почему вам стоит обратиться в компанию Милана Недвижимость ?Мы крупнейшее агентство недвижимости Оренбургской области. С 2007 года мы помогаем нашим клиентам найти недвижимость их мечты.Сопровождаем сделку с момента звонка до получения ключей от вашей новой недвижимости.Работаем с ведущими банками: ПАО Сбербанк , АО Россельхозбанк , Банк ВТБ (ПАО), ПАО Газпромбанк и многие другие.Предлагаем разные варианты оплаты, включая наличные, карты и ипотеку. Учитываем любые ваши пожелания и бюджеты.Ваш специалист по недвижимости - Кудряков Данил

Читать полностью

    Для того, чтобы купить однокомнатную квартиру по адресу: Оренбург, Автоматики проезд, 12/1, позвоните по телефону +7 (987) 780-59-20. Торопитесь! Объявление №30091105320 о продаже однокомнатной квартиры опубликовано 2 дня назад.

    Позвонить Написать
    3 500 000 Р44 040 $ или 37 940
    Агент
    +7 (987) 780-59-20
    Начать чат с агентом
    Похожие предложения
    2-к кв. Оренбургская область, Оренбург просп. Гагарина, 25/1 (50.4 м) - Фото 1
    2-к кв. Оренбургская область, Оренбург просп. Гагарина, 25/1 (50.4 м) - Фото 2
    2-комнатная квартира, общая площадь 50м², кухня 9м²

    Продается 2- комнатная квартира, в одном из самых хороших районов города Адрес: проспект Гагарина, дом 25/1 Дом 1980 года постройки. Комфортная 5 этажка. Общая площадь квартиры 50.4 кв. М. Отличная планировка, включает в себя просторную гостиную с выходом...
    • 50 м²
    • 2-ком
    • 5/5 эт.
    • панельный
    3 600 000 Р
    Агент
    +7 (987) Показать номер
    Посмотреть контакты
    1-к кв. Оренбургская область, Оренбург Ростоши мкр, ул. Новая, 50/5 ... - Фото 1
    1-к кв. Оренбургская область, Оренбург Ростоши мкр, ул. Новая, 50/5 ... - Фото 2
    1-комнатная квартира, общая площадь 36м², кухня 11м²

    Квартира в новом доме Пригород с полной инфраструктурой Доступна любая форма расчета в том числе Семейная ипотека 6 Предчистовая отделка: - разводка инженерных коммуникаций;- стяжка пола помещений;- подготовка стен помещений под обои;- качественные двухкамерные...
    • 36 м²
    • 1-ком
    • 1/4 эт.
    3 463 000 Р
    Агент
    +7 (987) Показать номер
    Посмотреть контакты
    2-к кв. Оренбургская область, Оренбург Волгоградская ул., 4 (44.0 м) - Фото 1
    2-к кв. Оренбургская область, Оренбург Волгоградская ул., 4 (44.0 м) - Фото 2
    2-комнатная квартира, общая площадь 44м², кухня 7м²

    Уютная квартира для семьи или одного Отличный вариант для тех, кто ищет комфортное и доступное жилье.Планировка включает в себя просторный зал, уютную спальню и функциональную кухню. Изолированные комнаты обеспечивают приватность для каждого члена семьи.Район...
    • 44 м²
    • 2-ком
    • 5/5 эт.
    • панельный
    3 499 000 Р
    Агент
    +7 (987) Показать номер
    Посмотреть контакты
    1-к кв. Оренбургская область, Оренбург ул. Родимцева, 8/1 (32.6 м) - Фото 1
    1-к кв. Оренбургская область, Оренбург ул. Родимцева, 8/1 (32.6 м) - Фото 2
    1-комнатная квартира, общая площадь 32м², кухня 8м²

    Однокомнатная квартира по адресу улица Родимцева 8/1.Квартира находится в отличном состоянии и полностью готова к проживанию. Объект выгодно расположен в районе с развитой инфраструктурой, на пересечении улиц Салмышская, Дружба, Просторная и Джангильдина....
    • 32 м²
    • 1-ком
    • 6/10 эт.
    • панельный
    3 500 000 Р
    Агент
    +7 (987) Показать номер
    Посмотреть контакты
    2-к кв. Оренбургская область, Оренбург Волгоградская ул., 4 (44.0 м) - Фото 1
    2-к кв. Оренбургская область, Оренбург Волгоградская ул., 4 (44.0 м) - Фото 2
    2-комнатная квартира, общая площадь 44м², жилая 28м², кухня 7м²

    Прoдаётся уютнaя 2-кoмнатнaя квартира 44 м2 c ремонтом -идeaльный cтapт для молодой ceмьи В квартире произведен свежий ремонт, После ремонта никто не проживал.Изолированные комнаты 17 м и 11,6 м, что обеспечит комфорт и уединение для всех членов семьи.Площадь...
    • 44 м²
    • 2-ком
    • 5/5 эт.
    • панельный
    3 450 000 Р
    Агент
    +7 (986) Показать номер
    Посмотреть контакты

    Не нашли подходящего объявления?

    Оставьте заявку, и наши риэлторы подберут квартиру в районе Оренбурга

    (0)