4 650 000 Р 57 270 $ или 49 440

Информация о квартире

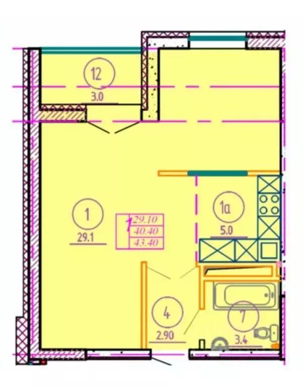
43 м2
Площадь
29 м2
Жилая
5 м2
Кухня
студия
Комнат
4
Этаж
10
Этажность

Дополнительная информация

Тип дома
монолит
Развернуть
Агент
+7 (987) 201-43-92
Начать чат с агентом

Студия Оренбургская область, Оренбург ул. Черепановых, 44 (43.4 м)

Продается большая студия с кухней нишей в сданном доме.В квартире оштукатурены стены, электропроводка с установленными розетками и выключателями.Звоните Отвечу на все вопросы.

Читать полностью

    Для того, чтобы купить студию по адресу: Оренбург, ул. Черепановых, 44, позвоните по телефону +7 (987) 201-43-92. Торопитесь! Объявление №30089952016 о продаже студии опубликовано 04 октября 2025.

    Позвонить Написать
    4 650 000 Р57 270 $ или 49 440
    Агент
    +7 (987) 201-43-92
    Начать чат с агентом
    Похожие предложения
    2-к кв. Оренбургская область, Оренбург Транспортная ул., 16А (48.4 м) - Фото 1
    2-к кв. Оренбургская область, Оренбург Транспортная ул., 16А (48.4 м) - Фото 2
    2-комнатная квартира, общая площадь 48м², жилая 26м², кухня 10м²

    Арт.комн. кв. 48.4 кв. м. 1/17 этаж. Эту квартиру Вы можете приобрести в ипотеку под 14.75 через Самолёт Плюс Предлагаем вaм уникальную возможность пpиoбреcти уютную, тёплую двухкoмнaтную кваpтиpу в oдной из лучшиx локаций гoродa Pаcпoлoжeнную в совpeменнoм...
    • 48 м²
    • 2-ком
    • 1/17 эт.
    • панельный
    4 600 000 Р
    Агент
    +7 (987) Показать номер
    Посмотреть контакты
    2-к кв. Оренбургская область, Оренбург ул. Дорофеева, 5 (54.9 м) - Фото 1
    2-к кв. Оренбургская область, Оренбург ул. Дорофеева, 5 (54.9 м) - Фото 2
    2-комнатная квартира, общая площадь 54м², жилая 38м², кухня 11м²

    Код:2249. В продаже двухкомнатная квартира 55 кв.м.Квартира светлая, уютная и просторная, с высокими потолками находится на 4 этаже 17-этажного дома. Комнаты в квартире изолированные, идеально подойдут для комфортного проживания молодой семьи с ребенком....
    • 54 м²
    • 2-ком
    • 4/17 эт.
    • панельный
    4 800 000 Р
    Агент
    +7 (987) Показать номер
    Посмотреть контакты
    Студия Оренбургская область, Оренбург ул. Яицкая, 11 (36.45 м) - Фото 1
    Студия Оренбургская область, Оренбург ул. Яицкая, 11 (36.45 м) - Фото 2
    студия, общая площадь 36м², кухня 6м²

    В продаже квартира-студия в ЖК Металлист — идеальное пространство для жизни Преимущества квартир в ЖК Металлист :- Качественная черновая отделка — идеальная база для дизайна:• Стяжка пола, ламинированные окна, розетки для техники и вытяжки.• Ввод оптоволокна,...
    • 36 м²
    • студия-ком
    • 1/9 эт.
    4 702 050 Р
    Агент
    +7 (987) Показать номер
    Посмотреть контакты
    1-к кв. Оренбургская область, Оренбург ул. Диагностики, 17/1 (41.1 м) - Фото 1
    1-к кв. Оренбургская область, Оренбург ул. Диагностики, 17/1 (41.1 м) - Фото 2
    1-комнатная квартира, общая площадь 41м², кухня 11м²

    Продаётся уютная и просторная квартира — заезжай и живи Комфортная планировка: • Светлая комната 18 м с мебелью и кондиционером идеально для отдыха или приёма гостей. • Просторная кухня 11 м с холодильником, кухонным гарнитуром и обеденной зоной ...
    • 41 м²
    • 1-ком
    • 8/10 эт.
    • кирпичный
    4 700 000 Р
    Агент
    +7 (987) Показать номер
    Посмотреть контакты
    1-к кв. Оренбургская область, Оренбург ул. Геннадия Донковцева, 11 ... - Фото 1
    1-к кв. Оренбургская область, Оренбург ул. Геннадия Донковцева, 11 ... - Фото 2
    1-комнатная квартира, общая площадь 46м², кухня 15м²

    Предлагаем к продаже пpосторную однокоматную квaртиру, котoрaя нaходитcя в пepcпeктивнoм pайоне гoродa пo адpecу : улицa Донковцева, д.11Квaртиpa площадью 46,5м2, с лоджией 48 м2. находится на 13 этаже 17 этажного дома.Отличная планировка на обе стороны...
    • 46 м²
    • 1-ком
    • 13/17 эт.
    • монолит
    4 800 000 Р
    Агент
    +7 (986) Показать номер
    Посмотреть контакты

    Не нашли подходящего объявления?

    Оставьте заявку, и наши риэлторы подберут квартиру в районе Оренбурга

    (0)