Россия, Оренбургская область, Оренбург, ул. Конституции СССР, 21/3

Реализация объекта недвижимости приостановлена

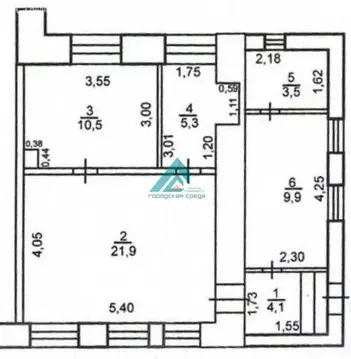
Информация о квартире

43.0 м2
Площадь
6.0 м2
Кухня
2
Комнаты
3
Этаж
5
Этажность

Дополнительная информация

Тип дома
панельный
Развернуть

2-к кв. Оренбургская область, Оренбург ул. Конституции СССР, 21/3 ...

Продаётся уютная и светлая двухкомнатная квартира, расположенная на тихой улице в приятном районе города Вас ждёт комфорт и гармония домашнего очага Просторные комнаты позволят вам создать идеальное пространство для отдыха и развлечений всей семьи. Натяжные потолки придают помещению современный вид, а пластиковые окна обеспечивают тишину и тепло круглый год.Вся мебель и техника остается новому собственнику. Расположенная на третьем этаже, эта квартира дарит ощущение свободы и простора благодаря панорамному освещению и оконным видам на оба направления. Прекрасные соседи создают атмосферу спокойствия и доброжелательности, делая проживание ещё более приятным. Удобства района поражают своей доступностью: школа 31 и детский сад находятся буквально рядом, позволяя детям получать образование и развиваться без долгих поездок. Медицинские учреждения также расположены близко, обеспечивая заботу о здоровье вашей семьи всего в нескольких минутах ходьбы. Торговый центр Север предлагает широкий выбор товаров и услуг, создавая дополнительные удобства для вашего быта. Дворец культуры Молодёжный станет отличным местом для культурного досуга и общения с единомышленниками.Покупайте свою мечту прямо сейчас и наслаждайтесь жизнью в гармонии и комфорте Код пользователя: 170991Номер в базе: 9664296

Читать полностью

    Реализация объекта недвижимости приостановлена

    Не нашли подходящего объявления?

    Оставьте заявку, и наши риэлторы подберут квартиру в районе Оренбурга

    (0)