6 900 000 Р 87 310 $ или 76 190

Информация о коттедже

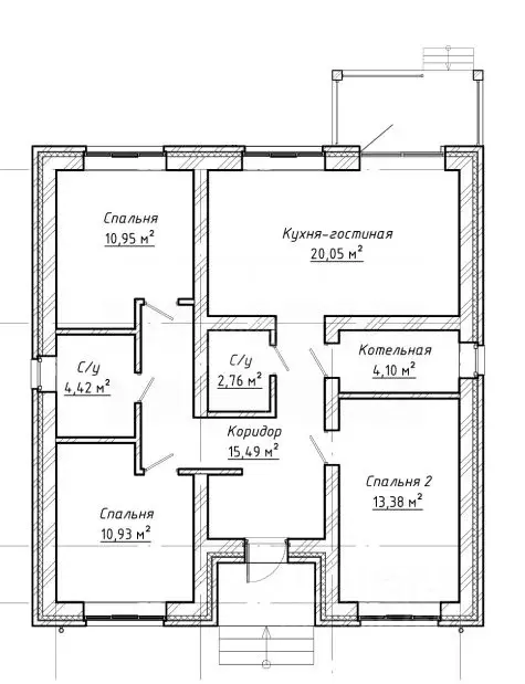
119 м2
Площадь
2
Этажность
2 cоток
Участок

Дополнительная информация

Дом продаётся вместе с участком
есть
Развернуть
Агент
+7 (987) 341-12-75
Начать чат с агентом

Дом в Оренбургская область, Оренбург Урюпинский пер., 3 (119 м)

В продаже двухэтажный дом.Первый этаж дома оборудован системой подогрева пола в зале и прихожей, обеспечивающей равномерное и эффективное распределение тепла. Инженерные коммуникации представлены двухконтурным котлом, что гарантирует независимое обеспечение отоплением и горячим водоснабжением. Имеется централизованная система канализации и водоснабжения, обеспечивающая надежное и бесперебойное функционирование.Кровля дома выполнена из современных материалов, что гарантирует долговечность и защиту от атмосферных воздействий. Стены дома возведены из керамзитоблоков с применением утеплителя, что обеспечивает отличную теплоизоляцию. Установлены пластиковые окна.Для поддержания комфортного микроклимата установлена сплит-система. В доме выполнен свежий ремонт с использованием высококачественных материалов. Мебель остаётся по договоренности. Имеется подвальное помещение, которое может использоваться в качестве технического или складского помещения. Высота потолков составляет 2,67 метра.

Читать полностью

    Для того, чтобы купить 2-этажный коттедж по адресу: Оренбург, Урюпинский пер., 3, позвоните по телефону +7 (987) 341-12-75. Торопитесь! Объявление №50016580685 о продаже двухэтажного коттеджа опубликовано 17 ноября 2025.

    Позвонить Написать
    6 900 000 Р87 310 $ или 76 190
    Агент
    +7 (987) 341-12-75
    Начать чат с агентом
    Похожие предложения
    Дом в Оренбургская область, Оренбург ул. 3-я Семафорная, 26 (88 м) - Фото 1
    Дом в Оренбургская область, Оренбург ул. 3-я Семафорная, 26 (88 м) - Фото 2
    1 этаж, общая площадь 87м², участок 6 соток

    Предлагаю к продаже дом 87,7 кв.м нас участком 6,7 соток. Дом полностью кирпичный, включая перегородкиТри спальни,зал и кухня.Санузел в доме.Есть мансарда ,которую можно сделать жилой.Дом подключен ко всем коммуникациям: Газовое отопление (котёл)Боллер...
    • 1 эт.
    • 87 м²
    • 6 сот.
    7 000 000 Р
    Агент
    +7 (987) Показать номер
    Посмотреть контакты
    Дом в Оренбургская область, Оренбург Дубовый Плес СНТ, проезд 2-й ... - Фото 1
    Дом в Оренбургская область, Оренбург Дубовый Плес СНТ, проезд 2-й ... - Фото 2
    1 этаж, общая площадь 82м², участок 5 соток

    Арт.Уникальный дом для вашей семьи Предлагаем вам функциональную планировку 82 кв.м, где вас ждут две уютные спальни и широкая кухня-гостиная Просто обустраивайтесь — поклейте обои и заезжайте Особенности:- Отдельная котельная и постирочная для вашего...
    • 1 эт.
    • 82 м²
    • 5 сот.
    7 000 000 Р
    Агент
    +7 (987) Показать номер
    Посмотреть контакты
    Дом в Оренбургская область, Оренбург Дубовый Плес СНТ, проезд 10-й ... - Фото 1
    Дом в Оренбургская область, Оренбург Дубовый Плес СНТ, проезд 10-й ... - Фото 2
    2 этажа, общая площадь 130м², участок 5 соток

    Продется ДОМ в городе, в 2 минутах от дороги дублера пр. Гагарина , в коттеджном поcелкe ДУБОВЫЙ ПЛЁC .Дом расположен на Асфальтированной улице, все подъездные пути асфальтированы.Активно развивающийся молодой поселок.Дом 2х этажный, общей площадью...
    • 2 эт.
    • 130 м²
    • 5 сот.
    6 999 000 Р
    Агент
    +7 (987) Показать номер
    Посмотреть контакты
    Дом в Оренбург, СНТ Дубовый Плёс, 1-й Дубовый проезд (82 м) - Фото 1
    Дом в Оренбург, СНТ Дубовый Плёс, 1-й Дубовый проезд (82 м) - Фото 2
    1 этаж, общая площадь 82м², участок 5 соток

    Арт.Уникальный дом для вашей семьи Предлагаем вам функциональную планировку 82 кв.м, где вас ждут две уютные спальни и широкая кухня-гостиная Просто обустраивайтесь — поклейте обои и заезжайте Особенности: - Отдельная котельная и постирочная для...
    • 1 эт.
    • 82 м²
    • 5 сот.
    7 000 000 Р
    Агент
    +7 (906) Показать номер
    Посмотреть контакты
    Дом в Оренбургская область, Оренбург Дубовый Плес СНТ, проезд 3-й ... - Фото 1
    Дом в Оренбургская область, Оренбург Дубовый Плес СНТ, проезд 3-й ... - Фото 2
    1 этаж, общая площадь 115м², участок 5 соток

    ДОМ ОТ ЗАСТРОЙЩИКА ДЕЙСТВУЮТ ВСЕ ВИДЫ ИПОТЕКИ ОТ 6 Продам просторный дом площадью 115 кв.м. с гаражом на участке 5,2 соток в новом развивающемся коттеджном поселке ДУБОВЫЙ ПЛЁС . За СКК Оренбуржье, вниз по улице Мира. Ленинский р-н г. Оренбурга.Дом...
    • 1 эт.
    • 115 м²
    • 5 сот.
    6 800 000 Р
    Агент
    +7 (912) Показать номер
    Посмотреть контакты

    Не нашли подходящего объявления?

    Оставьте заявку, и наши риэлторы подберут купить дом в районе Оренбурга

    (0)