 
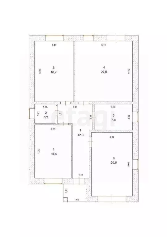
										От застройщика Подходит под СЕМЕЙНУЮ ИПОТЕКУ Продам классный дом 105м на участке 5.5 сот. в мкр Заречный.Выполнение: Фундамент: свайно-ленточный;Конструктив стены: керамзитоблок (евро блок) + утеплитель + облицовочный кирпич.Теплый пол с использованием труб из сшитого полиэтилена.Планировка: две большие спальни, кухня-гостиная, санузел, хол, котельная и гараж. Дом представлен с предчистовой отделкой, все стены идеально выровнены под маяк, полы стянуты машинной стяжкой, все коммуникации запущены Газовый котел, радиаторы и ворота на гараже будут установлены перед сделкой Все уже входит в стоимость Есть так же и другие варианты Скорее звони, чтобы успеть приобрести такой качественный дом по такой низкой цене. Код пользователя: 185944Номер в базе: 9792666
Для того, чтобы купить 1-этажный коттедж по адресу: Оренбург, ул. Ярославская, 21, позвоните по телефону +7 (987) 841-32-19. Торопитесь! Объявление №50016354138 о продаже одноэтажного коттеджа опубликовано 26 октября 2025.
 
								 
											
                                                                         
											
                                                                         
											
                                                                         
											
                                                                         
											
                                                                        Оставьте заявку, и наши риэлторы подберут купить дом в районе Оренбурга
