1 870 000 Р 22 990 $ или 19 850

Информация о квартире

43 м2
Площадь
5 м2
Кухня
2
Комнаты
1
Этаж
5
Этажность

Дополнительная информация

Тип дома
панельный
Развернуть
Агент
+7 (986) 780-59-45
Начать чат с агентом

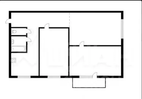
2-к кв. Оренбургская область, Новотроицк Зеленая ул., 55А (43.0 м)

Продам уютную двухкомнатную квартиру в центре Новотроицка, по адресу: Зелёная улица, 55А. Общая площадь — 43 кв. м, квартира расположена на 1 этаже 5-этажного панельного дома. Отличный вариант для семьи или пары, которая ищет комфортное жилье с удобной планировкой и доступной инфраструктурой.Квартира с косметическимемонта, поэтому можно сразу заехать и жить без лишних хлопот. Комнаты светлые и просторные, кухня площадью 5.5 кв. м функциональна и уютна. В квартире есть отдельный санузел, что удобно для семейного проживания. Здесь всё создано для вашего комфорта и уюта.Дом находится в хорошем состоянии, управление осуществляется добросовестной управляющей компанией. Есть наземная парковка, поэтому вы всегда найдёте место для своего автомобиля. Район тихий и зелёный, что обеспечивает приятную атмосферу для жизни.В шаговой доступности расположены школы и детские сады, что особенно удобно для семей с детьми. Также рядом находятся магазины, что позволяет экономить время на бытовых вопросах. Хорошая транспортная доступность, недалеко от дома находятся остановки общественного транспорта.Продажа квартиры осуществляется по договору купли-продажи. Возможно приобретение в ипотеку. Все документы готовы к сделке, квартира без обременений и юридически чиста.Звоните и записывайтесь на просмотр, чтобы оценить все преимущества этой квартиры вживую. Мы будем рады ответить на все ваши вопросы и помочь с выбором вашего нового дома

Читать полностью

    Для того, чтобы купить двухкомнатную квартиру по адресу: Новотроицк, ул. Зеленая, 55А, позвоните по телефону +7 (986) 780-59-45. Торопитесь! Объявление №30091567991 о продаже двухкомнатной квартиры опубликовано 03 ноября 2025.

    Позвонить Написать
    1 870 000 Р22 990 $ или 19 850
    Агент
    +7 (986) 780-59-45
    Начать чат с агентом
    Похожие предложения
    3-к кв. Оренбургская область, Новотроицк Зеленая ул., 22 (45.6 м) - Фото 1
    3-к кв. Оренбургская область, Новотроицк Зеленая ул., 22 (45.6 м) - Фото 2
    3-комнатная квартира, общая площадь 45м², жилая 30м², кухня 6м²

    На продаже 3-х комн. квартира по адресу : г. Новотроицк ул. Зелёная, 22 Квартира расположена на 5 этаже, пятиэтажного дома. Преимущества 5-го этажа - это лучшая естественная освещённость, более чистый воздух, меньше насекомых. Проникновению света не препятствуют...
    • 45 м²
    • 3-ком
    • 5/5 эт.
    • панельный
    1 800 000 Р
    Агент
    +7 (912) Показать номер
    Посмотреть контакты
    1-комнатная квартира: Новотроицк, улица Пушкина, 62 (29 м) - Фото 1
    1-комнатная квартира: Новотроицк, улица Пушкина, 62 (29 м) - Фото 2
    1-комнатная квартира, общая площадь 29м², жилая 18м², кухня 6м²

    Идеальная однокомнатная квартира с ремонтом Адрес: ул. Пушкина, 62. Этаж 1 из 5 в кирпичном доме. Эта квартира станет вашим уютным уголком или успешным коммерческим проектом - Свежий ремонт: выровненные стены, натяжные потолки и ровный пол. - Пластиковые...
    • 29 м²
    • 1-ком
    • 1/5 эт.
    1 800 000 Р
    Агент
    +7 (905) Показать номер
    Посмотреть контакты
    Квартира, 1 комната, 29 м - Фото 1
    Квартира, 1 комната, 29 м - Фото 2
    1-комнатная квартира, общая площадь 29м², кухня 6м²

    Идеальная однокомнатная квартира с ремонтом Адрес: ул. Пушкина, 62. Этаж 1 из 5 в кирпичном доме.Эта квартира станет вашим уютным уголком или успешным коммерческим проектом - Свежий ремонт: выровненные стены, натяжные потолки и ровный пол.- Пластиковые...
    • 29 м²
    • 1-ком
    • 1/5 эт.
    • кирпичный
    1 800 000 Р
    Агент
    +7 (909) Показать номер
    Посмотреть контакты
    3-к кв. Оренбургская область, Новотроицк ул. Свистунова, 9 (58.6 м) - Фото 1
    3-к кв. Оренбургская область, Новотроицк ул. Свистунова, 9 (58.6 м) - Фото 2
    3-комнатная квартира, общая площадь 58м², жилая 46м², кухня 7м²

    Продается уютная 3-комнатная квартира в г. Новотроицке по адресу ул. Свистунова, д. 9. Квартира расположена на удобном 2 этаже двухэтажного дома старого типа с высокими потолками и общей площадью 58,6 кв.м.Капитальный ремонт здесь не требуется — стены...
    • 58 м²
    • 3-ком
    • 2/2 эт.
    • кирпичный
    2 000 000 Р
    Агент
    +7 (987) Показать номер
    Посмотреть контакты
    3-к кв. Оренбургская область, Новотроицк ул. Есенкова, 6 (54.0 м) - Фото 1
    3-к кв. Оренбургская область, Новотроицк ул. Есенкова, 6 (54.0 м) - Фото 2
    3-комнатная квартира, общая площадь 54м², жилая 40м², кухня 6м²

    Код объекта: 1331855. Ищете уютное и доступное жильё в Новотроицке? Вашему вниманию предлагается трёхкомнатная квартира по адресу: улица Есенкова, 6.Эта квартира — идеальный выбор для тех, кто ценит комфорт и практичность. Расположенная на пятом этаже...
    • 54 м²
    • 3-ком
    • 5/5 эт.
    • кирпичный
    1 850 000 Р
    Агент
    +7 (987) Показать номер
    Посмотреть контакты

    Не нашли подходящего объявления?

    Оставьте заявку, и наши риэлторы подберут квартиру в районе Новотроицка

    (0)