20 400 000 Р 264 700 $ или 224 100

Информация об помещении

1
Этаж

Состояние и оснащение

Количество этажей
4
Развернуть
Агент
+7 (986) 780-60-67
Начать чат с агентом

Помещение свободного назначения в Оренбургская область, Бузулук ул. ...

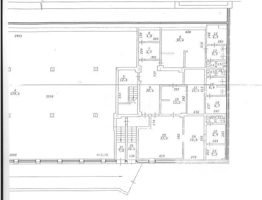
Продается помещение свободного назначения общей площадью 1051 кв. м на 1 и 4 этажах.1 этаж — 123,6 кв. м, 4 этаж — 927,4 кв. м.В помещениях есть действующие арендаторы. На 1 этаже выполнен качественный ремонт. А также в 2024 году произведен ремонт фасадной части здания.Отличное расположение в центре города рядом с Администрацией, гостиницей Бузулук , ТРЦ Север . Первая линия, прекрасная визуализация.Интенсивный пешеходный и транспортный трафик, высокая деловая активность, удобное транспортное сообщение с любой частью города. Перед зданием большая парковка.Оснащено водоснабжением, канализацией, отоплением, электроэнергией. Выделенная мощность 15 кВт.Подойдет под офис, производство, перепрофилирование под любые цели.Продажа от собственника — юридического лица ПАО Ростелеком . Цена указана с учетом НДС 22 . Не является офертой.Звоните С удовольствием ответим на все вопросы.

Читать полностью
    Позвонить Написать
    20 400 000 Р264 700 $ или 224 100
    Агент
    +7 (986) 780-60-67
    Начать чат с агентом
    Похожие предложения
    Помещение свободного назначения в Оренбургская область, Оренбург ул. ... - Фото 1
    Помещение свободного назначения в Оренбургская область, Оренбург ул. ... - Фото 2
    Срочно продается двухэтажное здание, по привлекательной цене По адресу: ул. Чкалова 171а Здание будет продано в феврале 2026 года (смотреть график сделки ниже)Всего два дня показов 23 и 25 февраля (предварительная запись)Общая площадь 1140 кв.м.,...
    • 2/2 эт.
    19 900 000 Р
    Агент
    +7 (987) Показать номер
    Посмотреть контакты
    Помещение свободного назначения в Оренбургская область, Оренбург ... - Фото 1
    Помещение свободного назначения в Оренбургская область, Оренбург ... - Фото 2
    ПродамКоммерческое помещение состоящее из :1. двухэтажное кирпичное здание общей площадью 585,10 м. кв.,состояние: ремонт, все пожарные коммуникации, вентиляция.Офисное помещение , которое можно приспособить под гостинничный бизнес. Территория позволяет...
    • 2/2 эт.
    20 900 000 Р
    Агент
    +7 (912) Показать номер
    Посмотреть контакты
    Помещение свободного назначения в Оренбургская область, Ясный ... - Фото 1
    Помещение свободного назначения в Оренбургская область, Ясный ... - Фото 2
    Закончился вклад с выгодным процентом депозита, и ты не знаешь куда вложить свои деньги чтобы они работали? Предлагаем приобрести готовый бизнес приносящий стабильный доход, а именно: Здание торгового комплекса с земельным участком 25 соток - вид разрешенного...
    • 1/1 эт.
    19 300 000 Р
    Агент
    +7 (987) Показать номер
    Посмотреть контакты
    Прямая продажа от застройщика - Фото 1
    Прямая продажа от застройщика - Фото 2
    Прямая продажа от застройщика - Фото 3
    Прямая продажа от застройщика - Фото 4
    Прямая продажа от застройщика - Фото 5
    Прямая продажа от застройщика - Фото 6
    Прямая продажа от застройщика - Фото 7
    Прямая продажа от застройщика - Фото 8
    Прямая продажа от застройщика - Фото 9
    Прямая продажа от застройщика - Фото 10
    Прямая продажа от застройщика - Фото 11
    Прямая продажа от застройщика - Фото 12
    Прямая продажа от застройщика - Фото 13
    Прямая продажа от застройщика - Фото 14
    Прямая продажа от застройщика - Фото 15
    Прямая продажа от застройщика - Фото 16
    Прямая продажа от застройщика - Фото 17
    Прямая продажа от застройщика - Фото 18
    Прямая продажа от застройщика - Фото 19
    Прямая продажа от застройщика - Фото 20
    полезная площадь 81.8м²

    Предлагается в продажу торговое помещение, расположенное в ЖК «1-й Химкинский»
    • 81.8 м²
    • 1/14 эт.
    20 898 100 Р
    Агент
    +7 (495) Показать номер
    Посмотреть контакты
    Прямая продажа от застройщика - Фото 1
    Прямая продажа от застройщика - Фото 2
    Прямая продажа от застройщика - Фото 3
    Прямая продажа от застройщика - Фото 4
    Прямая продажа от застройщика - Фото 5
    Прямая продажа от застройщика - Фото 6
    Прямая продажа от застройщика - Фото 7
    Прямая продажа от застройщика - Фото 8
    Прямая продажа от застройщика - Фото 9
    Прямая продажа от застройщика - Фото 10
    Прямая продажа от застройщика - Фото 11
    Прямая продажа от застройщика - Фото 12
    Прямая продажа от застройщика - Фото 13
    Прямая продажа от застройщика - Фото 14
    Прямая продажа от застройщика - Фото 15
    Прямая продажа от застройщика - Фото 16
    Прямая продажа от застройщика - Фото 17
    Прямая продажа от застройщика - Фото 18
    Прямая продажа от застройщика - Фото 19
    Прямая продажа от застройщика - Фото 20
    полезная площадь 79.2м²

    Предлагается в продажу торговое помещение, расположенное в ЖК «1-й Химкинский»
    • 79.2 м²
    • 1/17 эт.
    20 418 560 Р
    Агент
    +7 (495) Показать номер
    Посмотреть контакты

    Не нашли подходящего объявления?

    Оставьте заявку, и наши риэлторы подберут псн в районе Бузулука

    (0)