Реализация объекта недвижимости приостановлена

Информация о коттедже

100.0 м2
Площадь
1
Этажность
6.0 cоток
Участок

Дополнительная информация

Дом продаётся вместе с участком
есть
Развернуть

Дом в Оренбургская область, Бузулук Объездная ул. (100 м)

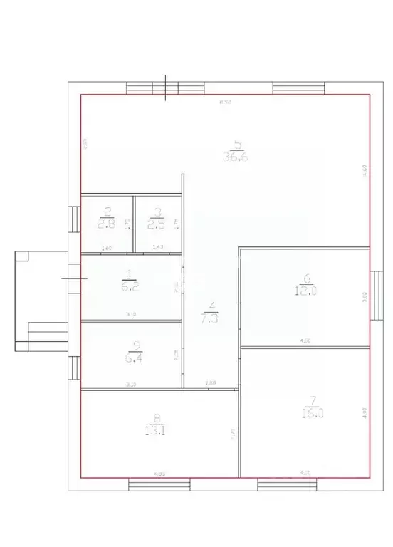
Арт.Цена 2024 годаИПОТЕКА 6 с первым взносом 20,1 Дом новой постройки с практичной планировкой - отличный вариант для проживания семьи с детьми.Планировка: 3 спальни, кухня-гостиная с панорамным остеклением и выходом на земельный участок, 2 с/у, котельная.Материал стен - газоблок, фасадная штукатурка короед.Крыша - металлочерепицаОкна - тройной стеклопакет, профиль 70 мм.Коммуникации заведены, разведены по точкам: свет, газ, вода-скважина, канализация локальная. Котёл, счётчики, теплый пол по всему дому с возможностью регулирования, входная дверь с терморазрывом, отмостка, отливы, освещение по периметру дома. Для вашего удобства - забетонирована площадка для автомобиля во дворе. Забор с трёх сторон- цвет шоколад.Подъездные пути отсыпаны гравием.Ипотека на самых выгодных условиях Не продана ваша недвижимость, обращайтесь, поможем

Читать полностью

    Реализация объекта недвижимости приостановлена

    Не нашли подходящего объявления?

    Оставьте заявку, и наши риэлторы подберут купить дом в районе Бузулука

    (0)